Votre future maison neuve au Tablier – Spéciale Primo-Accédants !
Vous rêvez de devenir propriétaire ? Saisissez cette opportunité unique au Tablier, dans un cadre paisible et verdoyant, à seulement quelques minutes de La Roche-sur-Yon !
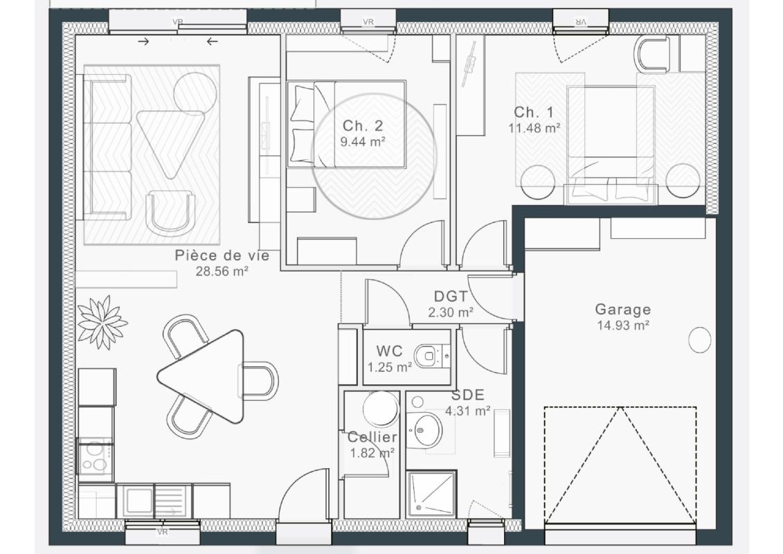
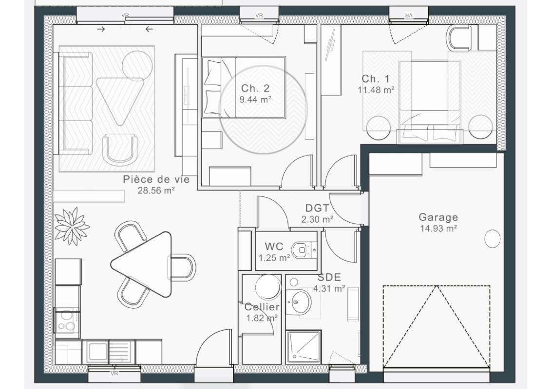
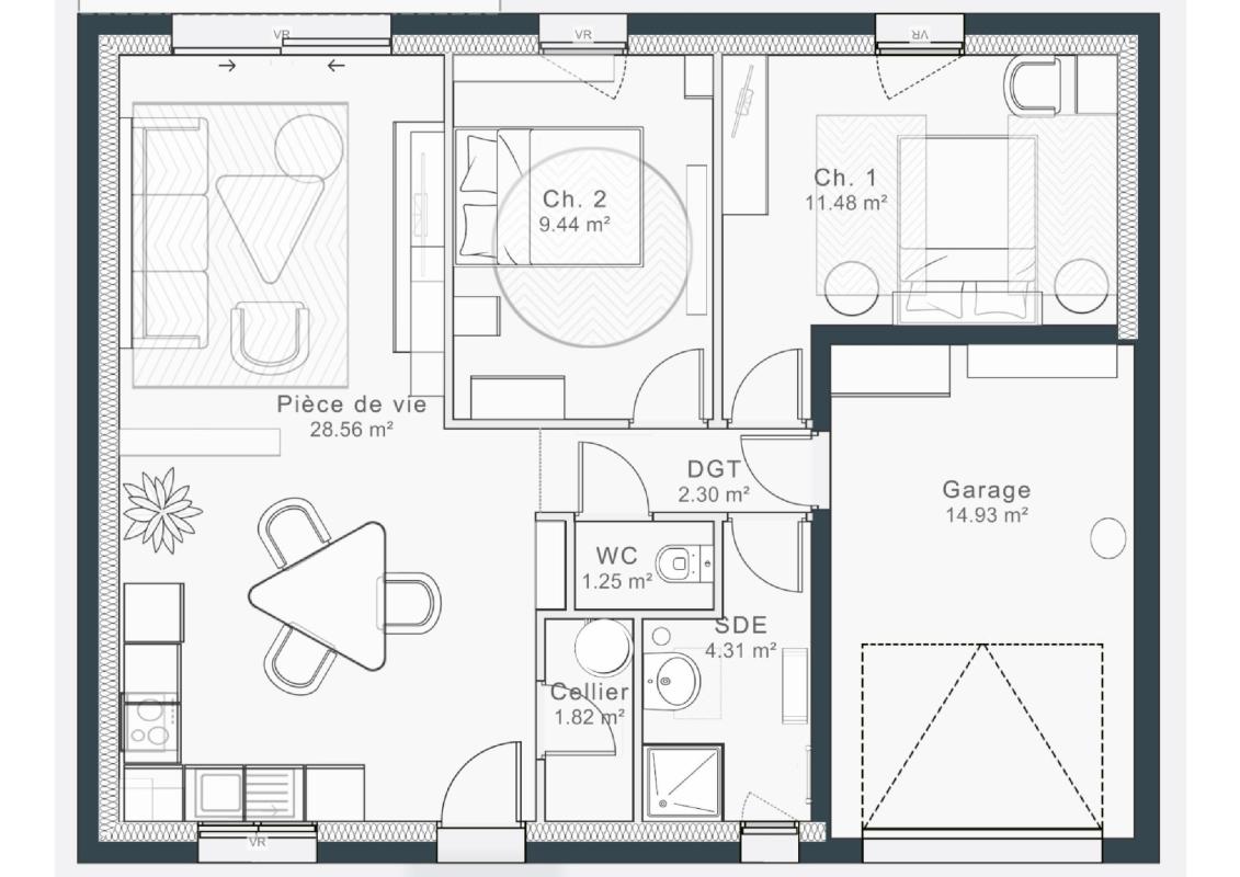
Nous vous proposons votre maison neuve de 2 chambres, à construire sur un joli terrain soigneusement sélectionné pour sa tranquillité et sa proximité des commodités.
Une maison pensée pour vous et votre bien-être
Belle pièce de vie lumineuse donnant sur le jardin, avec une cuisine ouverte
2 chambres confortables, idéales pour un couple ou une première famille
Salle d’eau contemporaine, avec douche à l’italienne
Garage intégré pour voiture, stockage ou atelier
Plans optimisés pour un maximum de confort et de praticité
Les avantages qui font la différence
Construction neuve : économies d’énergie ,matériaux performants, garanties constructeur,
Idéal primo-accédants : budget maîtrisé et possibilité d’aides selon votre situation
Environnement calme dans la commune du TABLIER
Terrain bien exposé , offrant un bel espace extérieur
Accès rapide aux commerces, écoles et services
Lancez-vous dans votre projet de vie !
Devenir propriétaire n’a jamais été aussi simple. Cette maison neuve est l’occasion parfaite de concrétiser votre premier achat dans un cadre agréable et serein.
Contactez-nous dès maintenant pour étudier votre projet, découvrir le terrain et personnaliser votre future maison !
Demandez PASCAL au 06 09 72 06 84


