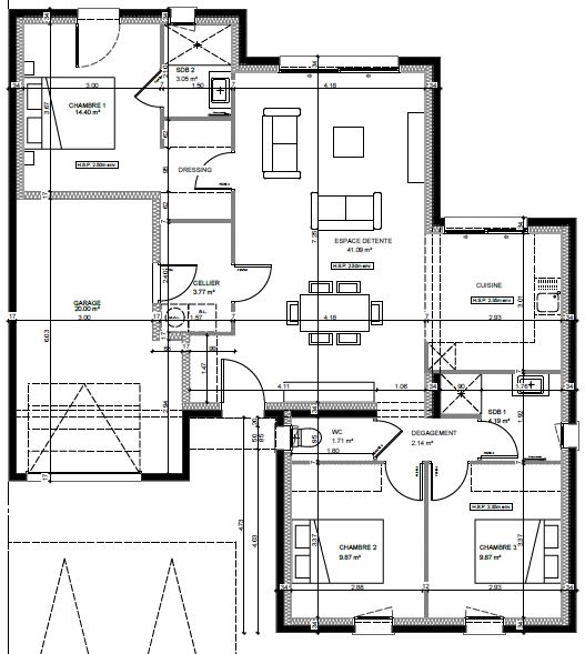
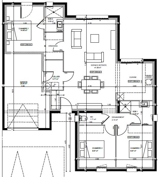
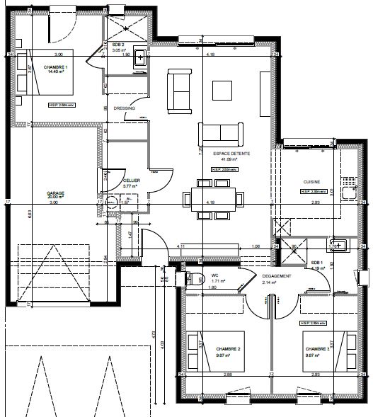
Sur la commune de NOTRE DAME DE RIEZ à proximité de SAINT HILAIRE DE RIEZ sur un terrain boisé de 591 m², BATI 85 constructeur de maisons depuis 42 ans, vous propose ce projet de construction comprenant: 3 chambres dont une suite parentale avec salle de douche et dressing, une 2 ème salle d’eau avec douche à l’italienne, un WC indépendant, une pièce de vie de 41 m² avec cuisine ouverte et 2 baies coulissantes ALU donnant sur le jardin, un cellier et un garage de 20 m², Projet idéal pour votre future résidence principale, éligible au prêt à taux zéro suivant conditions de ressources. Chauffage au sol basse consommation, isolation haute performance RE 2020, classement énergétique du logement A, carrelage sol 60 x 60, volets roulants électriques connectés, portail de garage sectionnel, portes intérieures décoratives.
Branchements techniques privés, empierrement d’accès et Assurance Dommage/Ouvrage compris.
Pour plus de précisions sur ce projet, contactez PASCAL au 06 09 72 06 84


