Avec BÂTI 85, constructeur depuis 1983
Laissez-vous séduire par cette maison neuve à construire avec BATI 85, constructeur de confiance depuis plus de 40 ans. Vous propose une étude personnalisée de votre projet, fonctionnalité et performance énergétique.
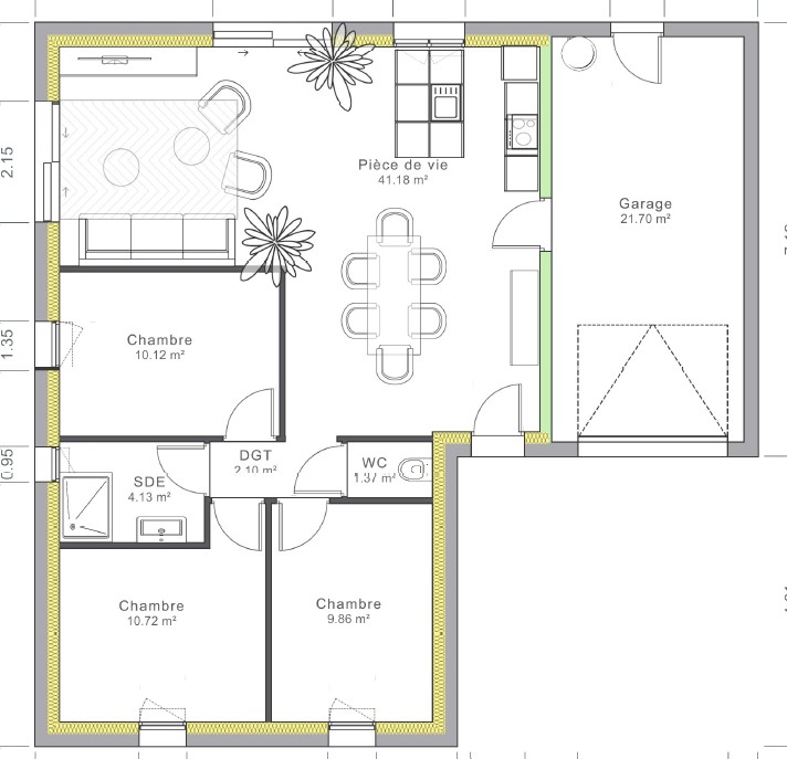
Caractéristiques principales :
• Surface habitable
• Conforme à la réglementation RE2020 pour une meilleure efficacité énergétique
• Belle pièce de vie lumineuse, ouverte sur l’extérieur
• 3 chambres confortables avec espaces de rangement
• Salle de bains avec équipements modernes
• Garage intégré
Pourquoi choisir BATI 85 ?
• Constructeur local et indépendant depuis 1983
• Accompagnement personnalisé de la conception à la remise des clés
• Garantie décennale et respect des normes en vigueur
• Matériaux de qualité et artisans locaux
Personnalisation possible du plan selon vos envies et votre mode de vie.
Contacter : Alain au O6.24.94.11.49 dès aujourd’hui pour une étude personnalisée de votre projet de construction BATI85.


