Terrain
56 000
Référence: 20250120TJGAPRESOURCE
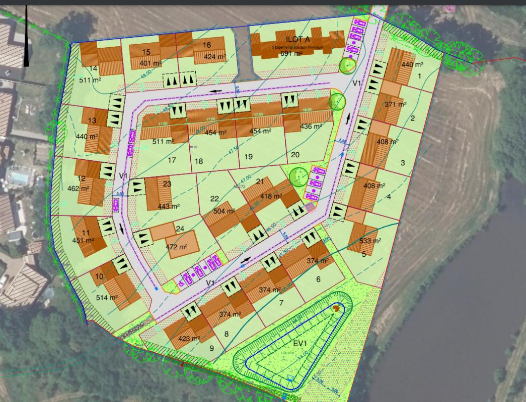
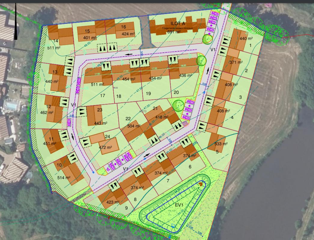
Surface du terrain: 371

Venez visiter ce terrain situé à APREMONT .

Situé idéalement dans un quartier calme et verdoyant pour y faire votre projet de construction. Lot 2 de 371m².

BATI85 votre constructeur depuis 1983 vous propose les prestations suivantes :
– Plan sur-mesure et personnalisé.
– Mode de chauffage au choix
– Grands choix d’équipements et de prestations
– Matériaux de qualité selon les normes en vigueur
– Accompagnement dans le choix et l’acquisition du terrain –

Construction conforme à la nouvelle RE 2020

Contact : Jérémy vous accueille au sein de son agence BÂTI85 à Challans pour étudier et concevoir votre projet de construction au 07.45.16.06.91

* Détail du prix et des prestations en agence ** Selon les disponibilités de notre partenaire foncier *** Photo(s) non contractuelle(s)

N'hésitez pas à contacter nos équipes

Intéressé.e.s par cette annonce ?

Contactez l'agence concernée