Maison neuve 3 chambres + garage sur terrain de 330 m²
Venez découvrir cette charmante maison neuve de 3 chambres, idéalement pensée pour offrir confort et fonctionnalité. Située sur un terrain de 330 m², elle allie modernité, praticité et qualité de vie.
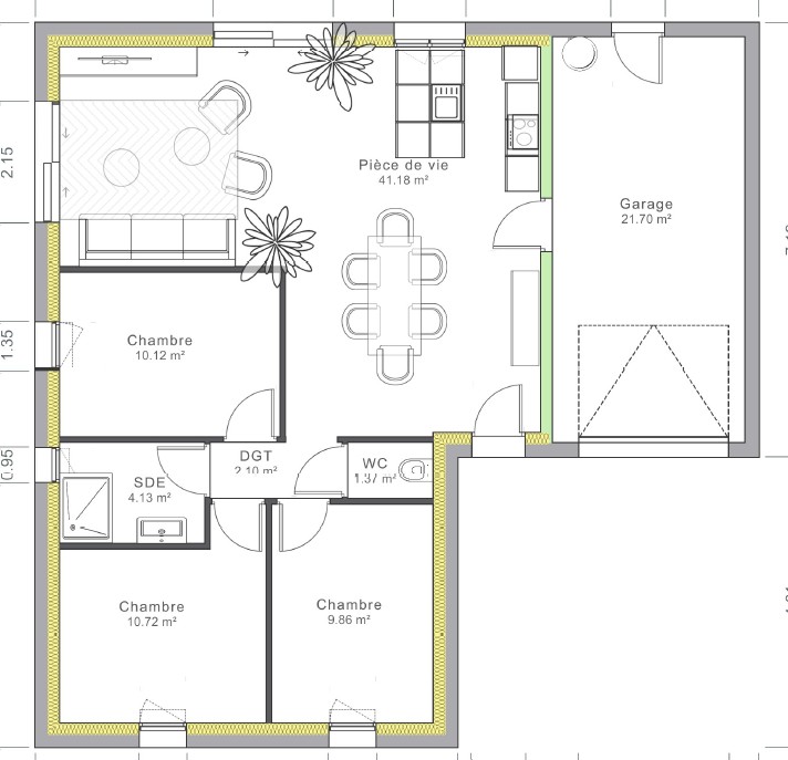
Descriptif du bien :
• Séjour lumineux avec cuisine ouverte
• 3 belles chambres avec rangements
• Salle de bain moderne (douche au choix)
• WC indépendant
• Garage intégré
• Jardin privatif exposé [à préciser : sud, est…]
Prestations :
• Construction neuve conforme à la RE 2020
• Isolation thermique et phonique performante
• Chauffage économique (pompe à chaleur)
• Possibilité de personnaliser les finitions intérieures
Terrain :
• Parcelle de 330 m² viabilisée
• Environnement calme et résidentiel
• Proximité des écoles, commerces, transports
Contactez-nous dès maintenant pour plus d’informations ou pour organiser une visite du terrain et du projet.


