Terrain + maison
215 600
Référence: AD-1231241
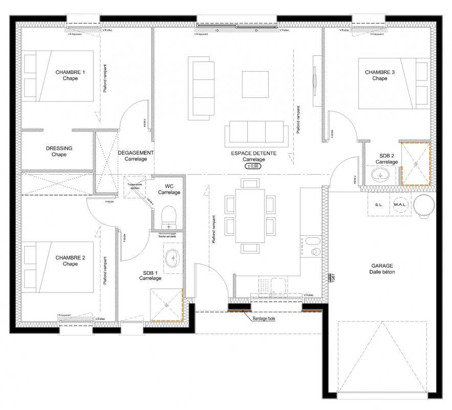
Superficie de la maison: 80
Nombre de pièces: 5
Nombre de chambres: 3

Projet de construction d’une maison avec terrain à CHALLANS (85) sur une parcelle de 366 m².
BATI85 vous propose de réaliser cette maison neuve d’une surface de 80 m² habitables avec chambres.
BATI85 vous propose les prestations suivantes :
– Plan sur-mesure et personnalisé.
– Mode de chauffage au choix
– Grands choix d’équipements et de prestations
– Matériaux de qualité selon les normes en vigueur
– Accompagnement dans le choix et l’acquisition du terrain –

Construction conforme à la nouvelle RE 2020

Demandez une étude gratuite et personnalisée de votre projet de construction.
Contactez Alain – BATI85 au 06.24.94.11.49

* Détail du prix et des prestations en agence ** Selon les disponibilités de notre partenaire foncier *** Photo(s) non contractuelle(s)

N'hésitez pas à contacter nos équipes

Intéressé.e.s par cette annonce ?

Contactez l'agence concernée