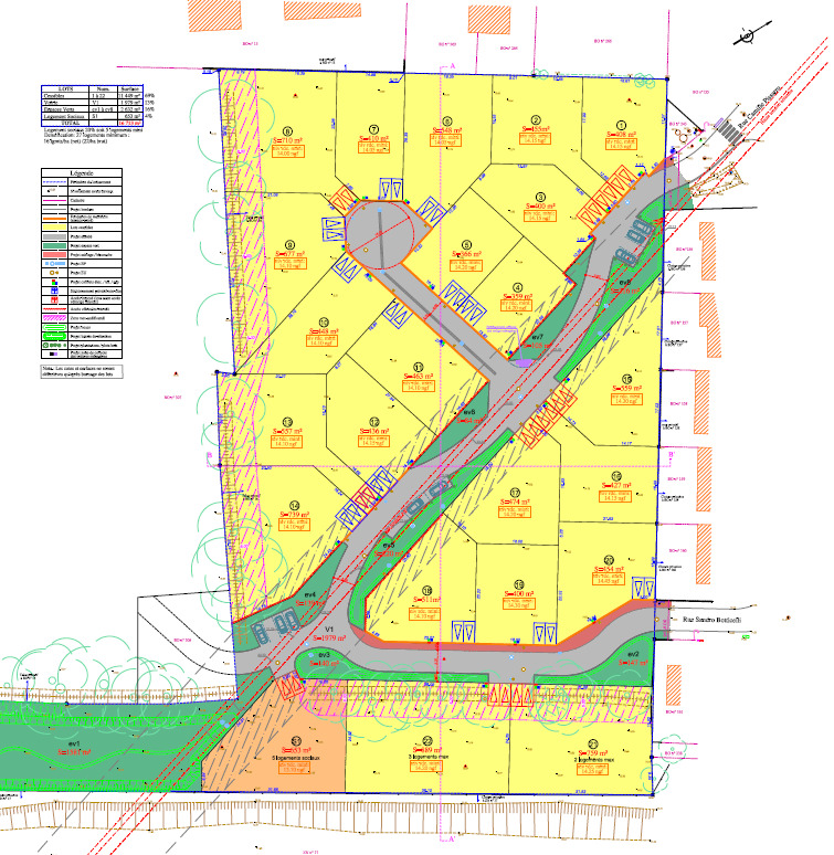
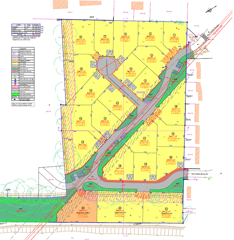
Terrain
70 000
Référence: 202602TJGANGES19
Surface du terrain: 400

BATI85 CHALLANS vous propose ce beau terrain à bâtir de 400 m², idéalement situé sur la commune de Challans.

Terrain viabilisé (eau, électricité, télécom, tout-à-l’égout)
Environnement agréable
Proche des commodités, écoles et commerces
Idéal pour votre future maison personnalisée

Profitez d’un emplacement recherché à Challans, entre mer et ville, pour concrétiser votre projet de construction dans un cadre de vie dynamique et convivial.

Pour plus d’informations ou une étude personnalisée de votre projet, contactez BATI85 CHALLANS.
Jérémy GODREAU au 07.45.16.06.91

N'hésitez pas à contacter nos équipes

Intéressé.e.s par cette annonce ?

Contactez l'agence concernée