Projet de construction – Maison modèle Optitude par BATI85 – Challans
Découvrez ce projet de construction clé en main situé à Challans, dans un quartier résidentiel calme et recherché, sur un terrain de 400 m².
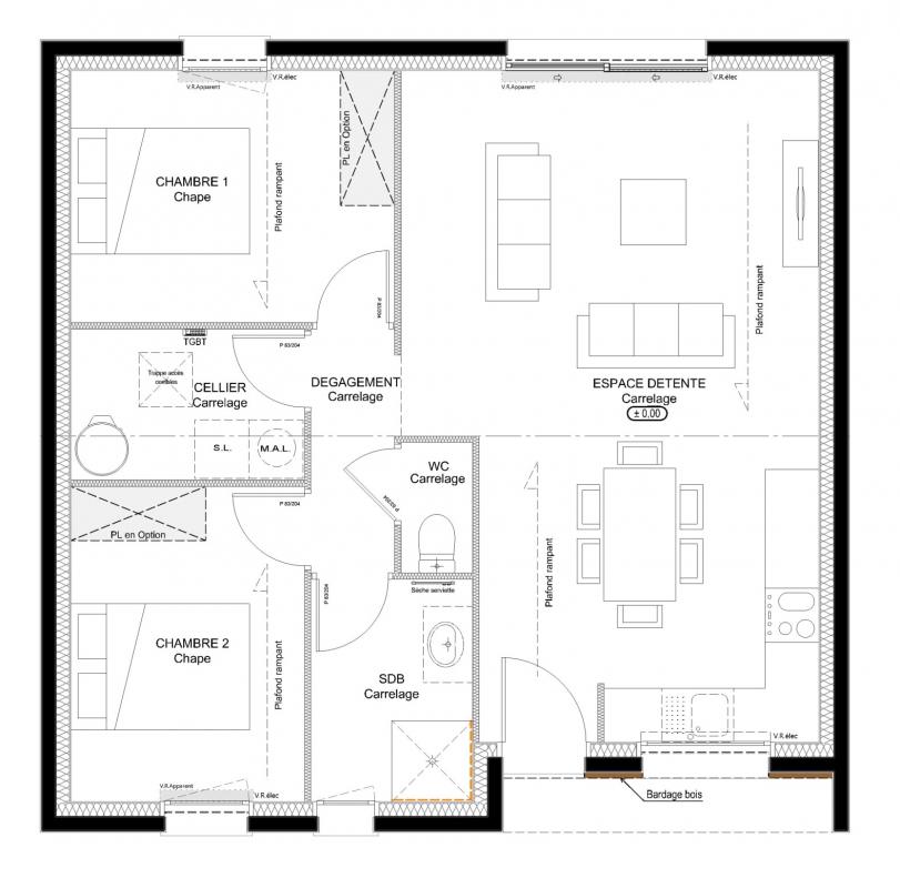
BATI85 vous propose la maison modèle Optitude, une valeur sûre, alliant architecture moderne, fonctionnalité et excellentes performances énergétiques. Conçue pour offrir un confort de vie optimal, cette maison s’adapte parfaitement aux besoins des familles d’aujourd’hui.
Le projet en détail :
Maison contemporaine Optitude – BATI85
Espaces de vie lumineux et bien agencés
3 chambres confortables (configuration modulable)
Belle pièce de vie ouverte sur l’extérieur
Salle de bain moderne
Garage (selon configuration)
Prestations soignées et matériaux de qualité
Conforme aux normes énergétiques en vigueur
Localisation idéale :
Challans – secteur résidentiel
Proche des commerces, écoles et services
Environnement calme et agréable
Accès rapide aux axes principaux et au littoral vendéen
Projet personnalisable selon vos envies et votre budget.
Contactez-moi dès maintenant pour plus d’informations et pour étudier ensemble votre projet de construction. Jérémy GODREAU au 07.45.16.06.91
BATI85 – Construisons ensemble votre avenir.
Prix hors assurance dommage ouvrage, terrain borné et viabilisé . Frais de notaire non compris, frais divers non compris. Terrain sélectionné et vu pour vous sous réserve de disponibilité et au prix indiqué par notre partenaire foncier. Conditions et visuels non contractuels


